2019. MA THESIS
- TITEL
- GERLINGS HUFEISEN
- SEMESTER
- SS 2019
- PRÜFER
- PROF. CAROLA WIESE
- ZWEITPRÜFER
- PROF. DR. DANIEL LOHMANN
Mitten in der Kölner Innenstadt gelegen, bietet das Gerling-Quartier nach dem Auszug des Gerling-Konzerns im Jahre 2009 das Potential für einen zentralen, architektonisch hochwertigen Stadtraum. Ansätze dafür sind mit verschiedenen Wohn- und Büronutzungen sowie dem neuen 25hours hotel im prägnanten Rundbau bereits präsent. Die Sanierung und Umnutzung des sich an der Süd-Ost Seite des Quartiers befindlichen Hufeisenbaus bildet den Grundstein dieser Arbeit. Der ehemalige Bürobau bietet aufgrund seines hohen Anteils an nördlich ausgerichteten Fassaden kein Potential für effiziente Wohnnutzungen. Auch eine erneute Büronutzung sollte hier als Versuch der städtischen Eingliederung nicht die Lösung sein, ist das Quartier doch vielen als großer Bürokomplex mit hermetischer Koexistenz zur Umgebung in Erinnerung geblieben. Vielmehr sollte hierbei die Nutzerdiversität des Viertels im Vordergrund stehen um die bestehenden Strukturen intensiver mit dem öffentlichen Stadtraum zu verzahnen. Hierzu wird eine Hostelnutzung vorgeschlagen. Der Bestand bietet aufgrund des vorhandenen Rasters gute Voraussetzungen für eine zellenbasierte Nutzung und würde damit eine jüngere, zahlungsärmere Zielgruppe ins Quartier locken, um die Durchmischung innerhalb der Baustrukturen der 1930 bis 1960er Jahre voranzutreiben.
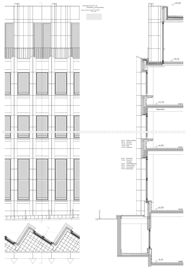
Gerade der Umgang mit der alten Substanz sollte aufgrund der repräsentativen Architektursprache des Quartiers zwar subtil ausfallen, jedoch gleichzeitig die vorhandene Struktur in die aktuelle Zeit transportieren. Die städtebauliche Prägnanz des Viergeschossers wird hier durch einen eingeschossigen, leicht zurückgesetzten Aufbau mit schräggestellter Fassade verstärkt, welcher das Gebäude tiefer in den städtischen Kontext einbindet und gleichzeitig einen subtilen Bruch in der geschossübergreifenden Fassadenstruktur bildet. Für die Bestandsfassade wurden drei konstruktive Varianten erarbeitet. Bei der ersten Variante, einer innenliegenden Dämmschicht, bliebe die Bestandsfassade zwar unberührt, eine vollständige thermische Abtrennung des Außenraums wäre allerdings nicht gewährleistet. Gleichzeitig würde dies einen starken Eingriff in die innenräumlichen Strukturen des Baus bedeuten. Eine zweite Möglichkeit böte das Ersetzen der bestehenden Dämmschicht durch Vakuumdämmung, welche jedoch aufgrund ihrer Unwirtschaftlichkeit nicht weiter verfolgt wird. Außerdem ist bei Entfernung und Lagerung der bestehenden Natursteinplatten deren Unversehrtheit nicht sicherzustellen. Vereinzelte Platten müssten ausgetauscht werden und das Bild eines Flickenteppichs würde entstehen, das der architektonischen Qualität des Quartiers nicht gerecht würde. Als Quintessenz wird die dritte Konstruktionsvariante gewählt. Hierbei würde die bestehende Fassade vollständig rückgebaut und durch in Qualität und Erscheinung äquivalenten Naturstein als Vorhangfassade mit dahinter liegendem Dämmpaket ersetzt.
Gleichermaßen wird das Konzept im Innenraum fortgeführt. Die prägnanten innenräumlichen Strukturen bleiben erhalten und werden neu bespielt. Das Motiv der entkernten Fassade als Zeitzeuge wird somit verhindert. Das Erdgeschoss mit seiner prägnanten Treppe und dem erhaltenen Brunnen bildet sich als großzügiges Foyer mit anliegenden Seminarräumen aus und wird zum öffentlichen Raum. Auf den Folgegeschossen bilden sich großzügige Gemeinschaftsflächen mit Bezug zum Brunnen im Erdgeschoss als halböffentliche Räume aus. Angeschlossen daran befinden sich die Herbergszimmer, welche Platz für vier bis sechs Gäste bieten. Sie basieren auf einem Möbel, das eine Schlafmöglichkeit und beidseitig zugänglichen Stauraum vereint. Nischen in den Fluren generieren halbprivate Aufenthaltsflächen vor den Zimmern von denen aus der Stauraum von außerhalb des privaten Raumes nutzbar wird. Gleichzeitig wird so das Bild ewig langer, linearer Flure vermieden. Das Möbel und somit auch die Nischen orientieren sich am gegebenen Fassadenraster und projizieren dadurch das äußere Erscheinungsbild des Baus nach Innen. Die städtebaulich prägnante Fassade des Aufbaus sorgt im Innenraum für interessante Raumkonstellationen und bietet den dort befindlichen Doppelzimmern immer wieder spannende Austritte in den öffentlichen Außenraum.





















